Nesta atividade projetamos um elevador automotivo 1T_SRG que é usado para elevar veículos automotores de quatro rodas de até 1000 kg de peso do solo até 1,80 metros no tempo de 60 segundos auxiliando as operações de inspeção, revisão, montagens e desmontagens de motor, cambio, transmissão, escapamentos, suspensão e pneus.
- Capacidade de carga: 2000Kg;
- Motor Elétrico: 1 motores de 1 CV;
- Tempo de elevação: 60 segundos;
- Altura total de elevação: 2 metros;
- Acionamento com botoeiras reversora e fins de curso mecânico;
- As operações de subida e descida podem ser interrompidas prontamente em qualquer posição ao longo do curso posicionando o veiculo na melhor altura para a execução do trabalho;
Potência Mecânica = [ Massa (Kg) x Aceleração gravitacional (m/s2) x Deslocamento (m) ] / tempo (s) (Watts) logo:
P = (2000 x 9,8 x 2 ) / 60 = 654,5 (W);
Vamos admitir um rendimento do conjunto mecânico de 60% - teremos que utilizar um motor de 1,1 Kw - 1,5 CV - 3370 RPM - 220 V - 4,28 A.Para proteção, controle e sinalização utilizamos:
- Seccionadora com duas posiçoes e bloqueio: Tamanho 0 - modelo 12 A;
- Disjunto motor: DM 1 - 6,3 A;
- Contator: CN6 - 10 A;
- Botoeiras e sinaleiros.
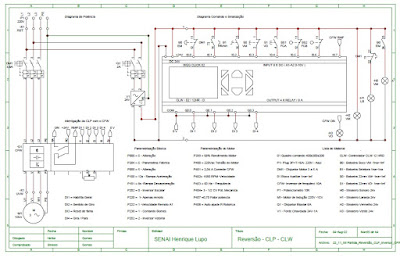
- Diagrama elétrico para controle de elevador automotivo com CLP CLW12-HRD, seletora, contatores e Inversor de frequência CFW_08 está disponível em: 22_11_55 Reversão_Seletora_CLP_Inversor_CFW08 .
- Diagrama Ladder para controle de elevador automotivo com CLP CLW12-HRD, seletora, contatores e Inversor de frequência CFW_08 está disponível em: 22_11_55 Ladder Reversão_Seletora_CLP_Inversor_CFW08 .
© Direitos de autor. 2016: Gomes; Sinésio Raimundo. Última atualização: 30/09/2022


Nenhum comentário:
Postar um comentário